1
МИЭТ выбирает проектировщиков и строителей нового общежития. Каким оно будет изнутри и снаружи — очень подробный обзор 06.11.2020 ZELENOGRAD.RU

Новое общежитие на Солнечной аллее МИЭТ планирует построить к середине 2023 года. Три корпуса гостиничного типа рассчитаны на 421 человека. Начальная цена контракта на строительство — 578 миллионов, еще около 14 миллионов выделили на разработку рабочей документации. Деньги на строительство — 600 миллионов рублей — в сентябре выделило министерство науки и высшего образования РФ. На бумаге — в конкурсных документах — общежитие описано достаточно подробно, от внешнего вида и озеленения до внутренней планировки комнат, удобств для инвалидов и расстановки мебели. Так что можно уже сейчас «заглянуть» в корпуса и рассмотреть территорию вокруг них.

Где построят

Участок застройки огибает проезжая часть: поворот с Солнечной аллеи на автомобильный круг (площадь Шокина) и далее на Георгиевский проспект, уходящий к лесу. Этот участок площадью в 1,41 га (кадастровый номер 77:10:0002007:43) находится в бессрочном пользовании МИЭТа уже давно. В 1995 году его назначением было «строительство и последующая эксплуатация учебно-лабораторного корпуса», позже оно сменилось на «образование и просвещение» и «гостиничную деятельность».

Инженерно-геологических изыскания для будущего строительства проводили в 2005, 2007, 2016 и 2018 годы — в итоге геологи не нашли у площадки существенных недостатков и охарактеризовали её как сезонно подтапливаемую. Осушение должна будет обеспечить планировка территории и отвод поверхностных вод в дождевую канализацию.

Корпуса

Три корпуса общежития поставят параллельно, торцами к дороге. В каждом по четыре этажа. При этом они будут разными по длине: самый длинный — блок А — ближе к автобусной остановке «Солнечная аллея», а самый маленький — блок С — к территории завода «Ангстрем». В каждом из корпусов предусмотрено по два входа, а также надземные отапливаемые переходы из корпуса в корпус — их сделают двойными, на уровне 3-го и 4-го этажей.

Все корпуса общежития — коридорного типа, без технического чердака, но с подвалами, в которых будут размещаться служебные помещения (тепловой пункт, водомерный узел, электрощитовая, аппаратная, кладовые для белья).

Возводить здания планируется на ленточных монолитных фундаментах, наружные стены сделают из газобетонных блоков, утеплителя и облицовки фасадов. Конструктивная схема здания — монолитные железобетонные стены и перекрытия. Отделка фасадов сочетает в себе витражные конструкции заполнения оконных проёмов, вентилируемый фасад и отделку плиткой под клинкерный кирпич в теплой цветовой гамме. Цвета подобраны по оттенкам окружающей застройки.

Корпус А

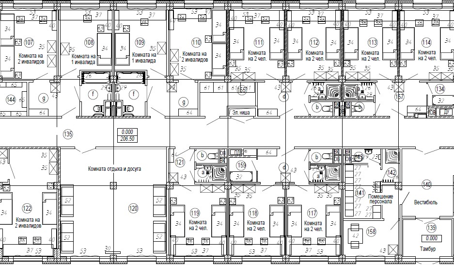
Самый большой корпус рассчитан на 201 студента и вместит 91 жилую комнату на двух человек (площадью в среднем около 15 кв.метров). Большинство комнат будут спаренными в блоки с раздельными санузлами, состоящими из туалета и ванной комнаты с душем. Небольшое количество комнат останутся отдельными, с собственными санузлами. В некоторых блоках предусмотрены кладовки.

Кухня будет общей на этаж, как и помещение для стирки/глажки/сушки одежды со стиральными машинами. На первом этаже разместятся также комнаты персонала и администрации: охраны, коменданта, вахтера, консьержа. Студентам будут отведены комнаты для самостоятельных занятий, комнаты отдыха и досуга с диванами и ж/к телевизором, помещения для хранения личных вещей.

Особенность блока А состоит в том, что его первый этаж максимально адаптируют для маломобильных жильцов и инвалидов-колясочников: здесь распланированы шесть жилых комнат на двух инвалидов (площадью 16-24 кв.метров) и семь комнат на одного (12.7-14 кв.метров), большинство спарены в блоки с совмещенным санузлом, в котором будет ванна вместо душевой кабинки. Для комфорта перемещения инвалидов все углы в коридорах будут скруглены. Дверные ручки установят в метре от пола и наклеят на них полоски с тактильным шрифтом Брайля, на стеклянных дверях сделают контрастные наклейки, в санузлах — тревожные кнопки с сигналом в помещение консьержа, а у входов в комнаты для инвалидов — световые маячки габаритов входных дверей. Также у обитателей первого этажа будет своя комната для занятий.

Вообще условия доступности для маломобильных групп населения должны обеспечить на первых этажах всех корпусов и на территории вокруг них. У входов — длинные пандусы с уклоном в 5%, ширина плиточных тротуаров должна быть не менее 2,25 метров для разъезда инвалидов на креслах-колясках, с бордюрными пандусами для съездов на проезжую часть без перепада высоты. Предусмотрена также специальная разметка, тактильная плитка и рельефные полосы для людей с потерей зрения.

Корпус B

Корпус В будет таким же, как корпус А, за исключением комнат для инвалидов — здесь будет 80 обычных жилых комнат на двух человек (площадью около 15 кв.метров), в основном спаренные в блоки с раздельным санузлом. Всего здесь разместятся 160 студентов.

В комнатах каждого студента будет ждать свой шкаф для одежды и вешалка в тамбуре, кровать с тумбочкой, стол со стулом, книжная полка. Помимо белья предполагается выдача средств личной гигиены и уборочного инвентаря — уборка комнат останется за студентами. На блок полагается общий холодильник.

Эти корпуса предназначены для размещения на период очного обучения студентов-одиночек в возрасте от 18 до 25 лет, как сообщается в проектных документах — студентов старших курсов, стажеров, магистрантов, аспирантов и докторантов, иностранных студентов и преподавателей, прибывающих в университет в рамках совместных образовательных проектов, для проведения совместных научных исследований, конференций и симпозиумов. Для семейных студентов и сотрудников университета предусмотрены места в студгородке МИЭТа на улице Юности в корпусах 7 и 11.

Корпус C

Самый маленький корпус определён для размещения профессорско-преподавательского состава — он состоит не из комнат, а из 30 однокомнатных квартир. В каждой квартире будет комната на двух человек (площадью 12-21 кв.метров), кухня (10.5-11 кв.метров), туалет и ванная, прихожая-тамбур, в некоторых будут кладовые. Обстановка дополнена телевизором в комнате, плитой и кухонным оснащением, стиральной машинкой. В этом корпусе также предусмотрен лифт и шумозащитные окна.

На первом этаже разместится буфет на 12 посадочных мест (площадью 33,7 кв.метров) — единственный на общежитие, с отдельным входом с улицы, с умывальной и санузлом, адаптированным для инвалидов. В ассортименте уже запланированы бутерброды, соки, напитки, чай, кофе, кисломолочные продукты, привозная выпечка и кондитерские изделия, без горячих блюд. Предполагается, что основное горячее питание студенты смогут получать в столовой самого МИЭТа через дорогу. Там же для обитателей нового общежития будет и медпункт с медицинским обслуживанием.

Парковки и дороги

Длинная сторона участка вдоль корпуса А и дальше к лесу отведена под автостоянки — в сумме на них разметят 58 машиномест: ближе к въезду и жилому корпусу расположится автостоянка на 27 машиномест, включая шесть мест для инвалидов, а в дальнем «аппендиксе» участка, за соседним зданием компании «Карт-Экспресс», сделают вторую стоянку на 37 машиномест.

Дороги шириной 4.5 метра пройдут вдоль всех корпусов, как и мощеные брусчаткой тротуары. С западного фасада корпуса А организуют зону для отдыха с парковыми скамейками и цветником. Спортивные площадки не запланированы — неподалеку стадион МИЭТ. Детские площадки также не предусматриваются, так как общежитие не семейное.

Вырубка и посадка деревьев

Сейчас часть участка будущего строительства занята лесом — «в границах работ произрастает 228 деревьев», сообщается в дендрологическом плане: в основном это ивы, березы, осины, немного клёнов и рябин, единичные ели и плодовые — самосев яблонь и слив. Растет и кустарник, часть которого представляет собой остатки старой живой изгороди из боярышника и жимолости. Все эти насаждения будут вырублены при строительстве «как малоценные, сухие, аварийные или не подлежащие пересадке».

Проект озеленения предусматривает посадки деревьев и кустарников, устройство газона. Между корпусами и Солнечной аллеей/площадь Шокина посадят 12 туй, а со стороны Георгиевского проспекта — 6 ёлок. Вдоль корпусов и тротуаров предполагается посадить 250 кустов дерена кроваво-красного и 12 саженцев можжевельника. У подъездов и на площадке для отдыха — 86 саженцев жимолости восточной, зону отдыха окружат 10 саженцев рябин. Вдоль автостоянок высадят 30 саженцев сирени. Садово-парковый газон займет более пяти тысяч кв.метров по периметру участка и между корпусами.

Безопасность

Всю территорию общежития уже запланировали обнести металлическим ограждением наподобие того, который окружает учебные здания МИЭТа напротив. Основной въезд-выезд предполагается сделать с Солнечной аллеи — с того же проезда, который сейчас ведёт к соседнему зданию компании «Карт-Экспресс». Резервные ворота и въезд с шлагбаумом будет с Георгиевского проспекта напротив территории завода «Ангстрем».

На входах в здания установят усиленные скоростные турникеты, на автоКПП — шлагбаумы с камерами видеонаблюдения и возможностью автоматического распознавания автомобильных номеров.

У нового общежития будет общая со всем МИЭТом система контроля и управления доступом на территорию и в корпуса общежитий, а также система авторизации и контроля доступа к ресурсам локальных вычислительных сетей.

Станьте нашим подписчиком, чтобы мы могли делать больше интересных материалов по этой теме


E-mail
Вернуться назад
На выбранной области карты нет новостей
Реклама
Реклама
Обсуждение
Интересно, будут ли в самих учебных корпусах что-либо переоборудовать для маломобильных, как в планируемом общежитии. Последний раз была там в январе - смотрю, многое отремонтировали и заменили, но доступной средой вроде не занимались.
Добавить комментарий
+ Прикрепить файлФайл не выбран